Home
Capitulo 43. Como conectar pantalla LCD.
- Detalles
- Escrito por: oscarrodfer
- Categoría: Arduino desde cero
- Visitas: 37
Compra el kit de arduino para realizar el curso en: https://amzn.to/3M0qgec
Listado de materiales
repositorio
Capitulo 10. Módulo LCD 1602A
- Detalles
- Escrito por: oscarrodfer
- Categoría: Arduino desde cero Bitwise Ar
- Visitas: 25
Compra el kit de arduino para realizar el curso en: https://amzn.to/3M0qgec
Listado de materiales
repositorio
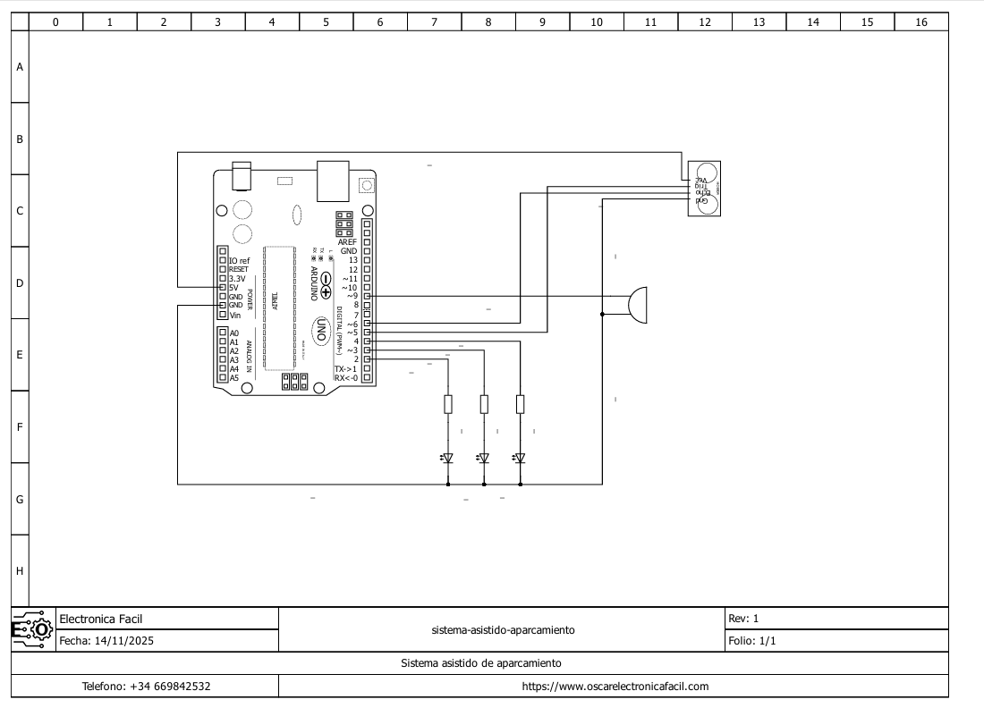
Sistema asistido de aparcamiento
- Detalles
- Escrito por: oscarrodfer
- Categoría: Proyectos
- Visitas: 38
En programando facil realizaron un proyecto que parece interesante sobre como montar un sistema asistido de aparcamiento.
Os dejamos el video del proyecto:
Esquema electrico
Os dejamos el esquema electrico de conexion:

Prototipo


Repositorio
Capitulo 7. Temperatura y humedad ambiente con DHT22 o DHT11
- Detalles
- Escrito por: oscarrodfer
- Categoría: Arduino desde cero Bitwise Ar
- Visitas: 32
Lista de componentes
1 x arduino UNO v3
1 x DHT22
Página 2 de 3